NOVÉ
Dům mezonetový R+(5+kk)
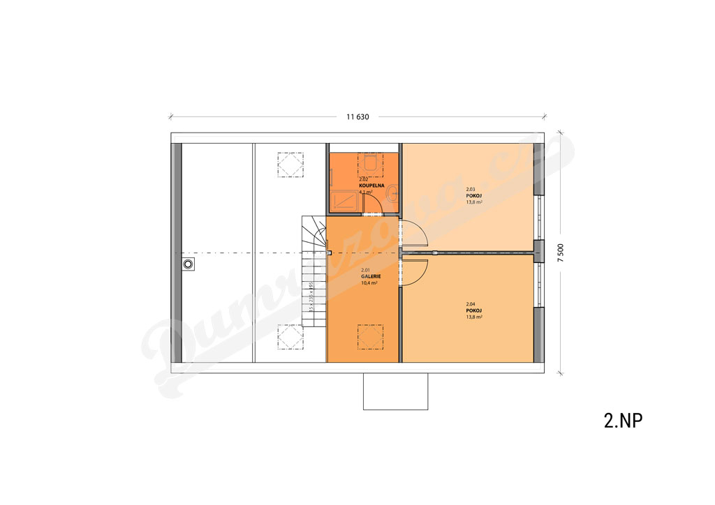
Rozšířená varianta mezonetu R přidává vedle galerie ještě dva pokoje a plnohodnotnou koupelnu. Nabízí tak dostatek soukromí v patře, a přitom i velkorysý společenský prostor. Je tedy ideálním řešením pro teenagery, odrostlé děti nebo příbuzné a kamarády, kteří přijedou na delší návštěvu. Galerii jsme zachovali, abyste měli dost místa pro ranní pozdrav slunci, kreativní tvoření, literární koutek nebo třeba sušák na prádlo.
Ke stažení: KATALOG STAVBY Dům mezonetový - R+
PLOCHA
| zastavěná plocha | 87,2 m2 |
| užitná plocha | 114 m2 |
| obytná plocha | 82,3 m2 |
DISPOZICE DOMU
5+kk
Přízemí – Zádveří, obytný prostor s kuchyní a vstupem na terasu, 2 pokoje, koupelna, WC, technická místnost
Patro – Galerie otevřená do obytného prostoru, 2 pokoje, koupelna
VSTUP NA ZAHRADU
široké posuvné okno
FASÁDA
kombinace standardní fasády a dřevěného obkladu
STŘECHA
40 stupňů, sedlová bez přesahů do boků domu
PROJEKT K DOMU ZDARMA
Vypracujeme projekt pro povolení stavby a pomůžeme vám se stavebním řízením.
| hrubá stavba | 2 481 600 Kč |
| stavba k dokončení | 4 479 200 Kč |
| stavba na klíč | 4 829 000 Kč |
Uvedené ceny jsou bez DPH. Nezahrnují základovou desku ani hydroizolaci a platí pro standardní provedení dřevostavby.
DOPRAVA DO 50 KM ZDARMA.KLIENTSKÉ ÚPRAVY
Přejete si jen trochu jinou střechu, okna nebo fasádu? Nabízíme i další varianty, pro které vám po dohodě vypracujeme přesnou individuální kalkulaci. Rádi přizpůsobíme náš projekt vašim představám nebo požadavkům místních předpisů. K domu přistavíme pergolu, garážové stání nebo terasu.
Podobné projekty z naší nabídky
KONTAKTUJTE NÁS
Zaujala vás tato dřevostavba?
Napište nám nezávaznou poptávku - rádi zodpovíme vaše dotazy.